דירות אין קרית יואל

נייעס אין אונזער קווארטאל
אוועיטער
דער תהלים איד
אקטיווער שרייבער
פאוסטס: 8544
זיך איינגעשריבן: דינסטאג יולי 18, 2023 10:36 am
x 21025

Re: דירות אין קרית יואל

פאוסט דורך דער תהלים איד »

תפארת שבתפארת האט געשריבן: מיטוואך מאי 21, 2025 5:54 pm איז דעיס נישט די לאט וואס האט געדארפט צו זיין די חתן כלה דירות פראיעקט וואס איז געווארן ANNOUNCED פאריאר ?
viewtopic.php?p=71052#p71052
יא יענס האט געהייסן צו זיין אויף א חלק פון דעם שטח (5 עיקער).

כ"ו אב האט אבער שוין דער רבי אנאנסירט דער נייער פלאן אז דארט גייט זיין דירות פאר $300 א סקווער פיס.

רענטאל'ס איז שוין ב"ה נישטא דער געברויך ווי אמאל זינט די סופליי איז ב"ה גאר הויעך.
אוועיטער
מחישי
אקטיווער באניצער
פאוסטס: 104
זיך איינגעשריבן: דינסטאג פעברואר 13, 2024 9:13 am
x 122

Re: דירות אין קרית יואל

פאוסט דורך מחישי »

דער תהלים איד האט געשריבן: מיטוואך מאי 21, 2025 4:53 pm פרישע פרייליכע נייעס אויפ'ן קרית יואל דירות מארקעט!

די באקאנטע טראסטפולע "אפסקעיל דעוועלאפערס" (הנגידים החשובים ר' עקיבא הערש קליין ושותפו ר' מאיר יעקב אינדיג) האבן אנגעהויבן די ארבעט אהערצושטעלן 900 הערליכע דירות פאר $300 א סקווער פיס, אויפ'ן נייעם "מאונטעין רידש" פראיעקט (אויבן מאונטעין ראוד, נעבן קארלסבורג).



MR.jpg



די ליסטע פאר די דירות ווערט געעפנט מארגן ביים גרויסן "סאטמארק", וואו אפסקעיל וועט האבן א גרויסן צענטער ביי נומער #414.

ביים סאטמארק צענטער וועלן שוין זיין אנוועזנד די גאנצע פארברייטערטע סעילס טיעם וואס אפסקעיל האט נארוואס פארטריפלט צו קענען נאכקומען די וואליום פון הונדערטער סעילס אויפאמאל בליעה"ר, דאס וועט זיין אן אויסוואהל פון 3 ריעלטי פירמעס: "LeMo ריעלטי" (ר' לייבוש פריעדמאן ענד סטעף), "MK ריעלטי" (ר' משה שמחה קויפמאן ענד סטעף), און "Point ריעלטי" (ר' אברהם יודא שווארץ מיט ר' לייב גלאנץ).

אין די צייט וואס עס בויט זיך העפטיג הונדערטער דירות אין "שכונת ויואל משה" אלעס פרעכטיג און "אפסקעיל" פאר'ן פרייז פון בלויז $300 א סקווער פיס, הויבן יעצט אן ארויסקומען די פרישע פראיעקטן וועלכע וועלן געבויט ווערן אין די נאנטע יארן, האלטנדיג אצינד ביי די אינפראסטרוקטור פאזע. אצינד קומט ארויס דער "מאונטעין רידזש" דעוועלאפמענט וואס האט שוין אקטיוו אנגעהויבן די מאסיווע אונטערנעמונג אויפ'ן שטח, זייענדיג א פלאן פון איבער 900 פרעכטיגע דירות, און וועט זיין דער שפיץ-אפציע פאר איינער וואס זוכט א דירה אין די נייע פראיעקטן וועלכע וועלן זיין גרייט אין די קומענדיגע יארן, וואס אין אזא פאל וויל מען שליסן מקח מיט "אפסקעיל דעוועלאפערס" וועלכע שטארט ארויס מיט דאס וואס יעדער זוכט: טראסט.

טראסט מיט האלטן ווארט, טראסט מיט האלטן די פרייז, טראסט מיט בעסטע בוי-קוואליטי.

פון די מעלות אין אזא פרישע דעוועלאפמענט איז, אז מען וועט קענען רעזערווירן א דירה פאר א קלענערע דעפאזיט, ווען די איבריגע חלק דעפאזיט וועט זיין רעזערווירט אויף שפעטער. לויט'ן חשבון פון אינפראסטרוקטשור ארבעט וועט מען אנהויבן גיסן פאנדעישנס אין בערך 2 יאר פון יעצט.

שטייענדיג ביי די לעצטע פאזעס פולקאמע סייט פלען אי"ה, וועלן די סעיסלייט שוין אננעמען צו ארויפגיין אויפ'ן ליסטע, צו זיין די ערשטע פאר א מיטינג אין די נאנטע וואכן.

די מאונטעין רידזש דירות וועלן זיין אויפ'ן שטח וואו מען פארט ארויף פונעם צענטראלער "פארעסט ראוד" צו די מאונטעין ראוד בארג. דער פראיעקט וועט האבן אלע סייזעס דירות: 4, 5, 6, 7, 8 און 9 רום פרעכטיגע דירות, אלעס מיט די טראסט וואס אפסקעיל דעוועלאפערס טוט ב"ה פראוון.

ווי געזאגט עפענט זיך די ליסטע מארגן ביים "סאטמארק שאו", און מ'וועט ווייטער קענען אריינרופן צום אפסקעיל אפיס, וואו מען וועט אלעמאל קענען אויסוועהלן אן עקסטענשן צו וועלכע סעילספערזאן מען וויל אנקומען, וואס דאס וועט בס"ד פארזיכערן מען זאל מער נישט דארפן ווארטן לאנג אויף אן אפוינטמענט בעת פילע אנדערע רופן אריין אין די זעלבע צייט. דער נומער איז 845.218.8200 אדער אויף אימעיל info@upscaledevelopers.com

אפסקעיל, א עכטע אויסוואהל, און מיט טראסט!

MRP.jpg
וואס טוט זיך מיט סוער פאר די דעוועלפמענט?
אוועיטער
Azoi Tzi Zugen
אקטיווער שרייבער
פאוסטס: 2960
זיך איינגעשריבן: פרייטאג יולי 14, 2023 11:39 am
x 6920

Re: דירות אין קרית יואל

פאוסט דורך Azoi Tzi Zugen »

מחישי האט געשריבן: מיטוואך מאי 21, 2025 7:03 pm וואס טוט זיך מיט סוער פאר די דעוועלפמענט?
וואס איז ער אנדערש ווי אלע אנדערע? פארעסט עדזש האט שוין יא? איך מיין אז די איינציגע וואס האבן שוין סוער פערמיטס פון די קאונטי נאך בעפארן בויען איז שכונת ויואל משה.
אוועיטער
פופציגער
אקטיווער שרייבער
פאוסטס: 3389
זיך איינגעשריבן: דאנערשטאג יולי 27, 2023 1:20 am
x 10799

Re: דירות אין קרית יואל

פאוסט דורך פופציגער »

Azoi Tzi Zugen האט געשריבן: מיטוואך מאי 21, 2025 7:52 pm
מחישי האט געשריבן: מיטוואך מאי 21, 2025 7:03 pm וואס טוט זיך מיט סוער פאר די דעוועלפמענט?
וואס איז ער אנדערש ווי אלע אנדערע? פארעסט עדזש האט שוין יא? איך מיין אז די איינציגע וואס האבן שוין סוער פערמיטס פון די קאונטי נאך בעפארן בויען איז שכונת ויואל משה.
עיקערס ענקלעיוו מיין איך האט שוין אויך די גאנצע
נאט אייך א געהענגל מיט פופציגערס געקליבן פון ארום דעם טיש

א פרייליכן תמיד!

נאנסענס איז נישט קיין קינדערשפיל
אוועיטער
Azoi Tzi Zugen
אקטיווער שרייבער
פאוסטס: 2960
זיך איינגעשריבן: פרייטאג יולי 14, 2023 11:39 am
x 6920

Re: דירות אין קרית יואל

פאוסט דורך Azoi Tzi Zugen »

אפסקעיל האט פריער געשיקט א אימעיל וועגן זייער סאטמארק בוט, דארט איז דא א בראשור פון אלע דירות https://booklet.thejewishblast.com/upscaleshowbrochure
אוועיטער
דער תהלים איד
אקטיווער שרייבער
פאוסטס: 8544
זיך איינגעשריבן: דינסטאג יולי 18, 2023 10:36 am
x 21025

Re: דירות אין קרית יואל

פאוסט דורך דער תהלים איד »

Azoi Tzi Zugen האט געשריבן: דאנערשטאג מאי 22, 2025 3:23 pm אפסקעיל האט פריער געשיקט א אימעיל וועגן זייער סאטמארק בוט, דארט איז דא א בראשור פון אלע דירות https://booklet.thejewishblast.com/upscaleshowbrochure
אויב שוין יא, איז דער עיקר די 4 קליפס פון די פראיעקטן...

געכאפט געווארן די וואך.

https://www.dropbox.com/home/Upscale%20Developers











דעת קדשי
אקטיווער שרייבער
פאוסטס: 1570
זיך איינגעשריבן: מוצש"ק סעפטעמבער 23, 2023 11:40 pm
x 3566

Re: דירות אין קרית יואל

פאוסט דורך דעת קדשי »

פארוואס מאכט קיינער נישט קיין 3D מאדעל פון די הייזער?
אוי וויי, הייליגער רבי שמעון, לעכטיגער רבי שמעון
נפשי חולת אהבתך....
צוקער וואסער
ניי צום טיש
פאוסטס: 7
זיך איינגעשריבן: זונטאג אוגוסט 04, 2024 6:56 pm
x 6

Re: דירות אין קרית יואל

פאוסט דורך צוקער וואסער »

איינער זאגט מיר אז עקיבא הערש איז אראפ ביי שכונות ויואל משה מיט די דאון פעימענט
אויב איינער קען קאנפירמען?
יאנטשי
אקטיווער שרייבער
פאוסטס: 1311
זיך איינגעשריבן: פרייטאג יולי 14, 2023 12:54 pm
x 1859

Re: דירות אין קרית יואל

פאוסט דורך יאנטשי »

ציקער וואסער האט געשריבן: דאנערשטאג מאי 22, 2025 10:37 pm איינער זאגט מיר אז עקיבא הערש איז אראפ ביי שכונות ויואל משה מיט די דאון פעימענט
אויב איינער קען קאנפירמען?
יא.

דריטע פון פערטע שטאקן איז דאון פעימענט אראפ צו 100k
נאו לעיבל
אידטיש שרייבער
פאוסטס: 901
זיך איינגעשריבן: דאנערשטאג יולי 20, 2023 8:47 pm
x 2383

Re: דירות אין קרית יואל

פאוסט דורך נאו לעיבל »

איינער מיט דעטאלן פון די דעוועלאפמענט?
פיילס
Screenshot_20250523_122255_Drive.jpg
Screenshot_20250523_122255_Drive.jpg (826.36 KiB) געזען געווארן 2020 מאל
אוועיטער
דער תהלים איד
אקטיווער שרייבער
פאוסטס: 8544
זיך איינגעשריבן: דינסטאג יולי 18, 2023 10:36 am
x 21025

Re: דירות אין קרית יואל

פאוסט דורך דער תהלים איד »

נאו לעיבל האט געשריבן: פרייטאג מאי 23, 2025 12:30 pm איינער מיט דעטאלן פון די דעוועלאפמענט?
וועלכע דעטאלן ווילסטו? איך קען אנפרעגן.

לפי ידיעתי פארקויפט מען נאכנישט קיין דירות דארט.

ס'גייט זיין געבויט ווי טאון הייזער (ס'איז אין טאון אף מאנרא).
אוועיטער
פלעשלייט
אקטיווער באניצער
פאוסטס: 250
זיך איינגעשריבן: דינסטאג סעפטעמבער 12, 2023 4:08 pm
x 309

Re: דירות אין קרית יואל

פאוסט דורך פלעשלייט »

וואס האט מהר"א היינט גערעדט אנבאלאנגט די טייערע דירות פרייזן וואס מ' בעט פון די חסידים וואס קומען אויף יו"ט שבועות?
אוועיטער
חלום חלמתי
אידטיש נייעס באריכטער
פאוסטס: 3921
זיך איינגעשריבן: פרייטאג אקטאבער 13, 2023 1:29 pm
x 24426

Re: דירות אין קרית יואל

פאוסט דורך חלום חלמתי »

דער תהלים איד האט געשריבן: פרייטאג מאי 23, 2025 1:47 pm
נאו לעיבל האט געשריבן: פרייטאג מאי 23, 2025 12:30 pm איינער מיט דעטאלן פון די דעוועלאפמענט?
וועלכע דעטאלן ווילסטו? איך קען אנפרעגן.

לפי ידיעתי פארקויפט מען נאכנישט קיין דירות דארט.

ס'גייט זיין געבויט ווי טאון הייזער (ס'איז אין טאון אף מאנרא).
מ'קען דארט בויען הונדערטער הייזער?
לוינט אים נישט ליבערשט צו ווארטן אויף א אניקסעישן? ס'איז ממש נעבן ווילידזש
נייעס וואס איך ברענג שרייב איך אליינס, ביטע צו צייכענען אויב עפעס איז נישט פונקטליך

זאלץ בענד אינטער די קוליסן


פריש: פאר חובבי היסטאריע און קרישקע ליבהאבער.
אוועיטער
שמח
אקטיווער שרייבער
פאוסטס: 4822
זיך איינגעשריבן: פרייטאג יולי 21, 2023 3:25 am
x 6505

Re: דירות אין קרית יואל

פאוסט דורך שמח »

פלעשלייט האט געשריבן: זונטאג מאי 25, 2025 1:55 am וואס האט מהר"א היינט גערעדט אנבאלאנגט די טייערע דירות פרייזן וואס מ' בעט פון די חסידים וואס קומען אויף יו"ט שבועות?
ק''פ

אין א דראמאטישע ווענדונג צום ציבור האט כ״ק מרן רבינו שליט״א פארגעהאלטן אינגעלייט היתכן אז מ׳פארדינגט דירות אויף שבועות - און מ׳פארלאנגט טויזנטער דאללאר אויף 2 טאג!

מיט וואס א רעכט בעט מען אזויסאך געלט אויף 2 טאג?

מ׳בעט פון אידן אויף שבועות - מער וויפיל די רענט קאסט א גאנצן חודש!

איז דאס אויסגעהאלטן?

אידן מעגן פארדינען, אבער מ׳דארף לאזן א צווייטן לעבן, און נישט אויסרייסן ביי א צווייטן נאר ווייל מ׳קען.
Headquarters
אקטיווער באניצער
פאוסטס: 212
זיך איינגעשריבן: דינסטאג אוגוסט 01, 2023 12:27 pm
x 513

Re: דירות אין קרית יואל

פאוסט דורך Headquarters »

Yoilish
אריינצושיקן עניטינג פון אייערע "העדקוואטערס" וואס איך זאל פאוסטן שיקט צו: ytheadquarters2023@gmail.com
רעדט צום דבר
פרישער באניצער
פאוסטס: 33
זיך איינגעשריבן: מאנטאג יאנואר 27, 2025 1:21 pm
Location: 10950
x 88

Re: דירות אין קרית יואל

פאוסט דורך רעדט צום דבר »

Loop Realty
P: 845-388-1155
E: info@looprealtyinc.com
COUNTY RT. 105
We are thrilled to announce a new development coming up in Monroe! Reach out as soon as possible to be added to the list.
Units will be priced at just $300 per square foot!
• Perfect location, on a private street, off County Route 105! (between svm and Highview Estates)
• Buildings will have 5, 6, 7 and 10 room units!
• Some 10 room units will have a big attached basement or attic!
• The units on the 4th floor will include commercial elevators at no extra charge!
• It will be built with many fantastic features, including granite countertops!
• Beautiful layouts!
• Construction will start soon!
Please reply with your information so you could be added to the list.
Signing contract will start this Tuesday Iy"h!

Feel free to contact us with any questions.
נאו לעיבל
אידטיש שרייבער
פאוסטס: 901
זיך איינגעשריבן: דאנערשטאג יולי 20, 2023 8:47 pm
x 2383

Re: דירות אין קרית יואל

פאוסט דורך נאו לעיבל »

רעדט צום דבר האט געשריבן: דינסטאג מאי 27, 2025 11:06 am
Loop Realty
P: 845-388-1155
E: info@looprealtyinc.com
COUNTY RT. 105
We are thrilled to announce a new development coming up in Monroe! Reach out as soon as possible to be added to the list.
Units will be priced at just $300 per square foot!
• Perfect location, on a private street, off County Route 105! (between svm and Highview Estates)
• Buildings will have 5, 6, 7 and 10 room units!
• Some 10 room units will have a big attached basement or attic!
• The units on the 4th floor will include commercial elevators at no extra charge!
• It will be built with many fantastic features, including granite countertops!
• Beautiful layouts!
• Construction will start soon!
Please reply with your information so you could be added to the list.
Signing contract will start this Tuesday Iy"h!

Feel free to contact us with any questions.
די דעוועלאפמענט ווערט געבויעט דורך אינדיגא. די פרייזן וואס ער האט ארויסגעלייגט אז פונקטליך 300 דאלער א סקווער פיס.
פיילס
Screenshot_20250527_140427_Drive.jpg
Screenshot_20250527_140427_Drive.jpg (340.27 KiB) געזען געווארן 898 מאל
אוועיטער
Azoi Tzi Zugen
אקטיווער שרייבער
פאוסטס: 2960
זיך איינגעשריבן: פרייטאג יולי 14, 2023 11:39 am
x 6920

Re: דירות אין קרית יואל

פאוסט דורך Azoi Tzi Zugen »

נאו לעיבל האט געשריבן: דינסטאג מאי 27, 2025 1:54 pm
רעדט צום דבר האט געשריבן: דינסטאג מאי 27, 2025 11:06 am
Loop Realty
P: 845-388-1155
E: info@looprealtyinc.com
COUNTY RT. 105
We are thrilled to announce a new development coming up in Monroe! Reach out as soon as possible to be added to the list.
Units will be priced at just $300 per square foot!
• Perfect location, on a private street, off County Route 105! (between svm and Highview Estates)
• Buildings will have 5, 6, 7 and 10 room units!
• Some 10 room units will have a big attached basement or attic!
• The units on the 4th floor will include commercial elevators at no extra charge!
• It will be built with many fantastic features, including granite countertops!
• Beautiful layouts!
• Construction will start soon!
Please reply with your information so you could be added to the list.
Signing contract will start this Tuesday Iy"h!

Feel free to contact us with any questions.
די דעוועלאפמענט ווערט געבויעט דורך אינדיגא. די פרייזן וואס ער האט ארויסגעלייגט אז פונקטליך 300 דאלער א סקווער פיס.
פאר א 5 רום איז 200K דעפאזיט און פאר א 10 רום איז נאר 175K? וויאזוי מאכט דאס סענס?
סוחר
אקטיווער באניצער
פאוסטס: 137
זיך איינגעשריבן: מוצש"ק פעברואר 08, 2025 10:33 pm
Location: אויפן מארק
x 374

Re: דירות אין קרית יואל

פאוסט דורך סוחר »

נאו לעיבל האט געשריבן: דינסטאג מאי 27, 2025 1:54 pm
רעדט צום דבר האט געשריבן: דינסטאג מאי 27, 2025 11:06 am
Loop Realty
P: 845-388-1155
E: info@looprealtyinc.com
COUNTY RT. 105
We are thrilled to announce a new development coming up in Monroe! Reach out as soon as possible to be added to the list.
Units will be priced at just $300 per square foot!
• Perfect location, on a private street, off County Route 105! (between svm and Highview Estates)
• Buildings will have 5, 6, 7 and 10 room units!
• Some 10 room units will have a big attached basement or attic!
• The units on the 4th floor will include commercial elevators at no extra charge!
• It will be built with many fantastic features, including granite countertops!
• Beautiful layouts!
• Construction will start soon!
Please reply with your information so you could be added to the list.
Signing contract will start this Tuesday Iy"h!

Feel free to contact us with any questions.
די דעוועלאפמענט ווערט געבויעט דורך אינדיגא. די פרייזן וואס ער האט ארויסגעלייגט אז פונקטליך 300 דאלער א סקווער פיס.
Wow

ביי די 5 רומיגע דירה דארף דער קונה אראפלייגן קנאפע 45% פון די פרייז...

דאס מיינט אז די דעוועלעפער קענען דעקן מיט די געלט פון די דעפאזיטס כמעט די גאנצע בויען קאסט (אויסער די שטח קאסט) און דארפן כמעט נישט צאלן קיין קאנסטראקשן לאונס...
תפארת שבתפארת
פרישער באניצער
פאוסטס: 40
זיך איינגעשריבן: מאנטאג אפריל 28, 2025 11:46 am
x 41

Re: דירות אין קרית יואל

פאוסט דורך תפארת שבתפארת »

אין די "היימשטאט " די וואך, איז באריכטעט איבער די נייע סעווען ספרינגס דעוועלעפמענט, בתוך הדברים שרייבט ער אז מ'גייט בויען א גרעסערע צאל דירות מיט ווייניגער סק.פס.

וואס ליגט אונטער די אפשען ? איז עס טאקע נאר צו העלפן אידן קויפן עפארדעבל הייזער? אדער די דעוועלאפער קען אויף עפעס א וועג זיך שפארן געלט? (טאמער 300$ א סק. פס. איז א פאקט, ווייס איך נישט וויאזוי ער שפארט זיך)

איך האב נאכנישט געהערט ביז היינט אז איינער זאל זאגן אז מ'בויט אין קר"י עפעס ספעציעל ברייטער ווי די נארמאלע מינימום, אז ס'זאל זיין צופיהל פון וואו אראפצונעמן
פיילס
HEIMSHTUT
HEIMSHTUT
Screenshot 2025-05-27 222525.png (374.68 KiB) געזען געווארן 605 מאל
ארבעט זאנע
פרישער באניצער
פאוסטס: 99
זיך איינגעשריבן: מיטוואך דעצעמבער 11, 2024 3:33 pm
Location: 10950
x 117

Re: דירות אין קרית יואל

פאוסט דורך ארבעט זאנע »

איינער ווייסט אפשר צו עס איז דא עני אפדעיט וועגן די דירות פון אברהם בראך ווען ער הייבט אן צו פארקויפן מיט פלענס?
און וועגן די דירות אויף פארעסט פון יחזקאל/יואל בראך, וואס זייער פלאן איז לגבי אונטערשרייבן אפציעל פאר די וועד?

ביטע?
ארבעט זאנע
פרישער באניצער
פאוסטס: 99
זיך איינגעשריבן: מיטוואך דעצעמבער 11, 2024 3:33 pm
Location: 10950
x 117

Re: דירות אין קרית יואל

פאוסט דורך ארבעט זאנע »

תפארת שבתפארת האט געשריבן: דינסטאג מאי 27, 2025 10:35 pm אין די "היימשטאט " די וואך, איז באריכטעט איבער די נייע סעווען ספרינגס דעוועלעפמענט, בתוך הדברים שרייבט ער אז מ'גייט בויען א גרעסערע צאל דירות מיט ווייניגער סק.פס.

וואס ליגט אונטער די אפשען ? איז עס טאקע נאר צו העלפן אידן קויפן עפארדעבל הייזער? אדער די דעוועלאפער קען אויף עפעס א וועג זיך שפארן געלט? (טאמער 300$ א סק. פס. איז א פאקט ווייס איך נישט וויאזוי ער שפארט זיך)

איך האב נאכנישט געהערט ביז היינט אז איינער זאל זאגן אז מ'בויט אין קר"י עפעס ספעציעל ברייטער ווי די נארמאלע מינימום, אז ס'זאל זיין צופיהל פון וואו אראפצונעמן
איך קען דיר זאגן וויאזוי איך האב עס פארשטאנען ווען איך עס געליינט,

א געווענליכע 8-7 רומיגע דירה קומט מיט א גרויסע דייניג רום און א גרויסע קאך (ספיצעיל וואס אפסקעיל שטעלט צו אין די גרויסע דירות א גאר גרויסע פראקטישע קאך)
עס קומט געוונעליך אויך מיט א גרעסערע לאנדרי רום און א גרעסערע פאוער וואו א 6-5 רומיגע דירה,

איך פארשטאנען פון דעם ארטיקן אז עס וועט זיין א אפציע פון א 8 רומיגע דירה אן די ריזיגע דייניג רום און קאך
סא ווען דו ווילסט מאכן א וואכנאכט וועסט עס דארפן מאכן ביי דיין טאטע/שווער.
מי שברך
אקטיווער באניצער
פאוסטס: 285
זיך איינגעשריבן: זונטאג יולי 16, 2023 4:40 pm
Location: קר"י
x 241

Re: דירות אין קרית יואל

פאוסט דורך מי שברך »

נאו לעיבל האט געשריבן: דינסטאג מאי 27, 2025 1:54 pm
רעדט צום דבר האט געשריבן: דינסטאג מאי 27, 2025 11:06 am
Loop Realty
P: 845-388-1155
E: info@looprealtyinc.com
COUNTY RT. 105
We are thrilled to announce a new development coming up in Monroe! Reach out as soon as possible to be added to the list.
Units will be priced at just $300 per square foot!
• Perfect location, on a private street, off County Route 105! (between svm and Highview Estates)
• Buildings will have 5, 6, 7 and 10 room units!
• Some 10 room units will have a big attached basement or attic!
• The units on the 4th floor will include commercial elevators at no extra charge!
• It will be built with many fantastic features, including granite countertops!
• Beautiful layouts!
• Construction will start soon!
Please reply with your information so you could be added to the list.
Signing contract will start this Tuesday Iy"h!

Feel free to contact us with any questions.
די דעוועלאפמענט ווערט געבויעט דורך אינדיגא. די פרייזן וואס ער האט ארויסגעלייגט אז פונקטליך 300 דאלער א סקווער פיס.
Changor Estates Information and Plans_250528_113130_2.jpg
Changor Estates Information and Plans_250528_113130_2.jpg (236.1 KiB) געזען געווארן 456 מאל
מצוה גדולה להיות בשמחה תמיד
מי שברך
אקטיווער באניצער
פאוסטס: 285
זיך איינגעשריבן: זונטאג יולי 16, 2023 4:40 pm
Location: קר"י
x 241

Re: דירות אין קרית יואל

פאוסט דורך מי שברך »

מי שברך האט געשריבן: מיטוואך מאי 28, 2025 11:32 am
נאו לעיבל האט געשריבן: דינסטאג מאי 27, 2025 1:54 pm
רעדט צום דבר האט געשריבן: דינסטאג מאי 27, 2025 11:06 am
Loop Realty
P: 845-388-1155
E: info@looprealtyinc.com
COUNTY RT. 105
We are thrilled to announce a new development coming up in Monroe! Reach out as soon as possible to be added to the list.
Units will be priced at just $300 per square foot!
• Perfect location, on a private street, off County Route 105! (between svm and Highview Estates)
• Buildings will have 5, 6, 7 and 10 room units!
• Some 10 room units will have a big attached basement or attic!
• The units on the 4th floor will include commercial elevators at no extra charge!
• It will be built with many fantastic features, including granite countertops!
• Beautiful layouts!
• Construction will start soon!
Please reply with your information so you could be added to the list.
Signing contract will start this Tuesday Iy"h!

Feel free to contact us with any questions.
די דעוועלאפמענט ווערט געבויעט דורך אינדיגא. די פרייזן וואס ער האט ארויסגעלייגט אז פונקטליך 300 דאלער א סקווער פיס.
Changor Estates Information and Plans_250528_113130_2.jpg
Changor Estates Information and Plans_250528_113130_6.jpg
Changor Estates Information and Plans_250528_113130_6.jpg (123.64 KiB) געזען געווארן 454 מאל
Changor Estates Information and Plans_250528_113130_5.jpg
Changor Estates Information and Plans_250528_113130_5.jpg (109.81 KiB) געזען געווארן 454 מאל
Changor Estates Information and Plans_250528_113130_4.jpg
Changor Estates Information and Plans_250528_113130_4.jpg (161.84 KiB) געזען געווארן 454 מאל
מצוה גדולה להיות בשמחה תמיד
מי שברך
אקטיווער באניצער
פאוסטס: 285
זיך איינגעשריבן: זונטאג יולי 16, 2023 4:40 pm
Location: קר"י
x 241

Re: דירות אין קרית יואל

פאוסט דורך מי שברך »

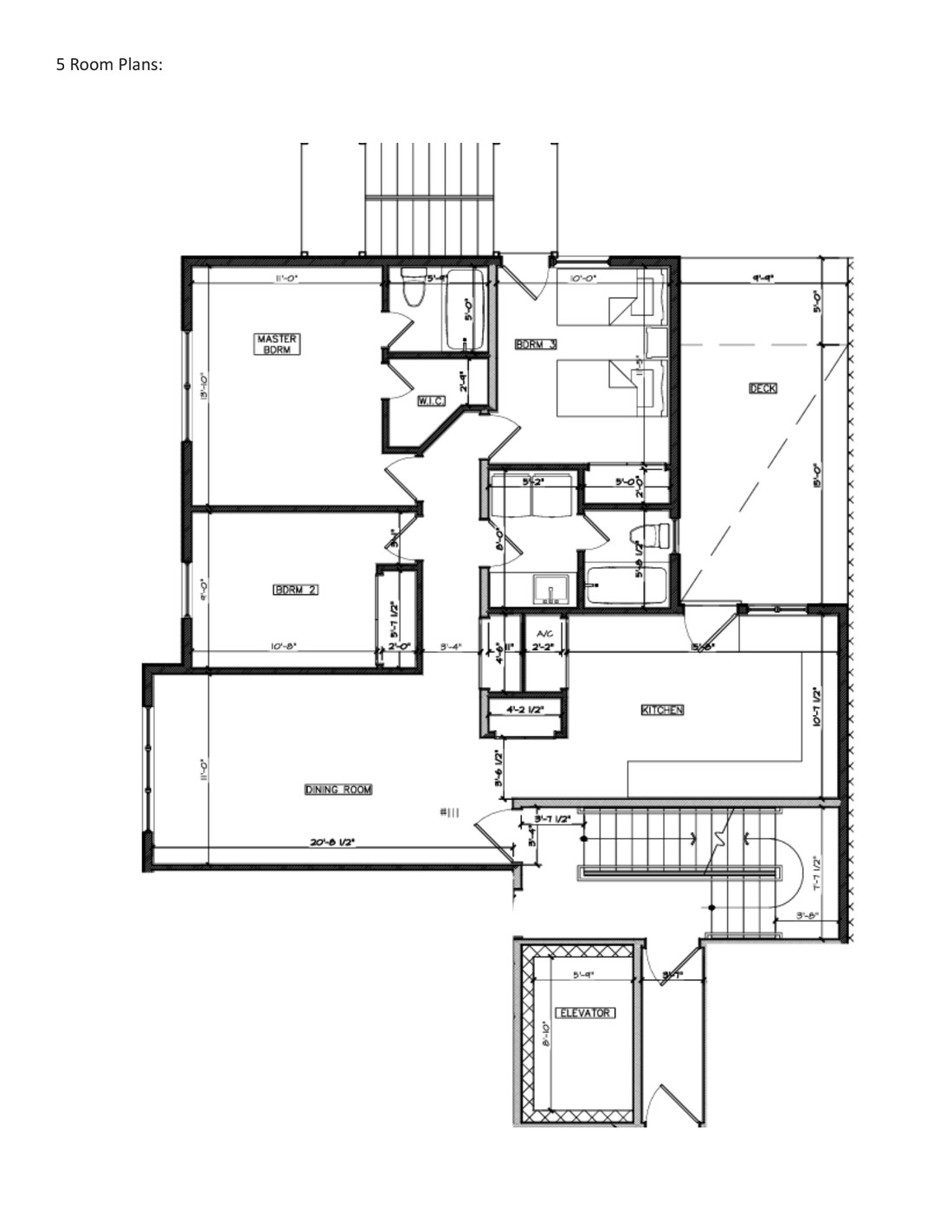
Changor Estates Information and Plans_250528_113130_3.jpg
Changor Estates Information and Plans_250528_113130_3.jpg (121.38 KiB) געזען געווארן 451 מאל
מצוה גדולה להיות בשמחה תמיד
שרייב פאוסט